Martins Lane Custom Home Design Reveal | Hingham, MA

We’re excited to officially share the design for the Martins Lane Project, a 7,800-square-foot custom home currently under construction in Hingham, Massachusetts. With foundation work now underway, this project marks the moment where months of planning, design development, and collaboration begin to take physical form.

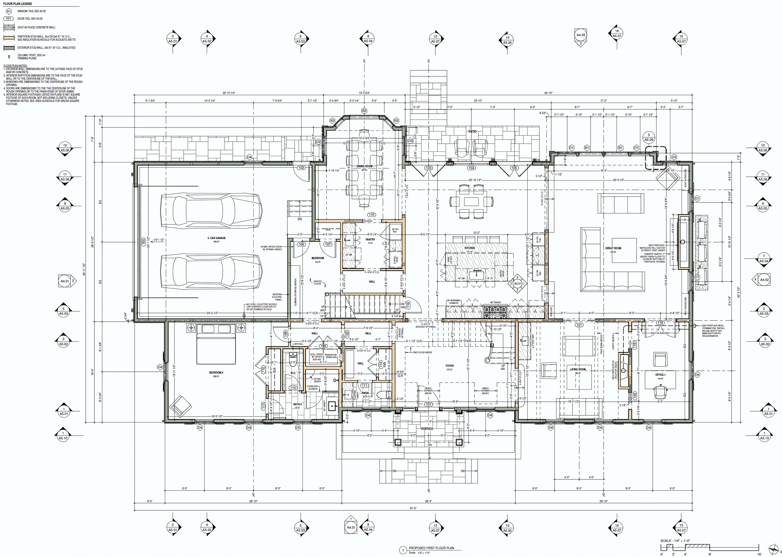
A Thoughtful Approach to Large-Scale Residential Design

From the outset, the goal for Martins Lane was to create a home that feels timeless, balanced, and rooted in its New England context. While the scale of the house is substantial, the design prioritizes proportion, material selection, and long-term livability over trends or excess.

The exterior architecture draws from classic coastal and historic New England influences, reinterpreted for modern living. Rooflines, window proportions, and massing were carefully studied to ensure the home sits naturally on the site and feels appropriate to its surroundings—now and decades from now.

From Design Vision to Construction Reality

Releasing a design at the same time foundation work begins is always a meaningful milestone. Long before excavation started, the project went through extensive design coordination, site planning, and constructability review to ensure a smooth transition from concept to build.

With the foundation in place, attention now shifts to execution—where craftsmanship, sequencing, and detailing become paramount. Each phase moving forward builds on the clarity established during the design process, allowing decisions in the field to remain aligned with the original vision.

Built by White Oak Home, Designed by The Kerr Collective

The Martins Lane home is being built by White Oak Home, with design and development led by The Kerr Collective. Together, the team brings a shared focus on quality construction, historically informed design, and thoughtful modern functionality. Thank you to Bob Williamson for bringing our vision to life!

As the structure rises, we’ll continue to share updates on the build, materials, and details that define this project—from framing through finishes. Martins Lane is a strong example of how careful planning and intentional design set the foundation for a successful custom home.

Stay tuned as this Hingham residence continues to take shape.

Previous
Previous

A Cozy Garage Apartment ADU Designed for Short-Term Rental Income

Next
Next

Liberty Pole Home Renovation in Hingham | Traditional Meets Mid-Century Modern